I measc na rónta fuinnimh rothlacha, tá dhá chineál ann den chuid is mó: RC2055 agus RC2056. Tá Ruichen Seals ag déanamh staidéir ar fhorbairt agus ar mhonarú táirgí róin le blianta fada. De réir cásanna éagsúla agus riachtanais éagsúla, tá dearaí níos mionsonraithe déanta aige.
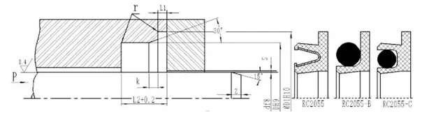
Is séala uile-phlocóid rothlach é RC2055, is séala rothlach rothlach é RC2055-B, agus is séala teaglaim rothlach Y-chruthach é RC2055-C. Tá grooves na dtrí in -idirmhalartaithe. Is rónta ardfheidhm iad le brú aontreoch a chuirtear i bhfeidhm ar shafts rothlacha. Ina measc, tá an séala uile-phlocóid rothlach RC2055 comhdhéanta de spriongaí cruach dhosmálta agus plaistigh ardfheidhmíochta. Agus RC20555-B agus RC2055-C á úsáid, is gá na hábhair leaistiméire meaitseála a roghnú go réasúnach.
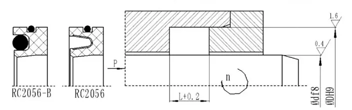
Is séala uile-phlocóid rothlach é RC2056, agus is séala comhcheangailte rothlach Y-chruthach é RC2056-B. Is féidir na grooves a mhalartú freisin. Tá sé oiriúnach freisin le húsáid i seafta rothlacha. Ina measc, tá an séala uile-phlocóid rothlach RC2056 comhdhéanta de spriongaí cruach dhosmálta agus plaistigh ardfheidhmíochta. Agus RC2056-B á úsáid agus, is gá na hábhair leaistiméire meaitseála a roghnú go réasúnach.
Gnéithe agus feidhmchláir táirge:
Gnéithe Táirgí:
Ardfheidhmíocht: Cuirtear spriongaí cruach dhosmálta agus plaistigh ardfheidhm le chéile chun feidhmíocht agus marthanacht shéalaithe den scoth a chinntiú.
Idirmhalartaitheacht: Tá dearadh groove na dtáirgí sa tsraith mar an gcéanna, a chuireann ar chumas idirmhalartaithe agus oiriúnú solúbtha do dhálaí oibre éagsúla.
Infheidhme go forleathan: Oiriúnach do shéalú brú aontreo de shafts rothlacha chun freastal ar riachtanais thionsclaíocha éagsúla.
Elaistomers roghnacha: RC2055-B, RC2055-C agus RC2056-B Tacaíonn sé le roghnú ábhar leaistiméire a mheaitseálann de réir coinníollacha oibre chun inoiriúnaitheacht a fheabhsú.
Cásanna Iarratais:
Tá séalaithe brú aontreo de shafts rothlacha oiriúnach do threalamh tionsclaíoch, innealra innealtóireachta, córais hiodrálacha, etc.
Ócáidí ina bhfuil gá le rónta ardfheidhmíochta, mar shampla peitriceimiceáin, trealamh fuinnimh, innealra trom, etc.
Buntáistí teicniúla:
Soláthraíonn spriongaí cruach dhosmálta fórsa gathacha cobhsaí chun éifeacht rónta fadtéarmach a chinntiú.
Tá an teaglaim de phlaistigh ardfheidhm agus d'ábhair leaistiméire oiriúnach do dhálaí ardbhrú agus ardluais.
Déanann an dearadh idirmhalartaithe groove suiteáil agus cothabháil a shimpliú agus laghdaíonn sé an costas úsáide.
Moltaí úsáide:
Roghnaigh an tsamhail róin chuí agus an t -ábhar leaistiméire de réir na gcoinníollacha oibre sonracha.
Cinntigh go bhfuil an groove glan le linn na suiteála chun damáiste don séala a sheachaint.
RC2055
Coinníollacha oibre is infheidhme (níor cheart luachanna teorann a bheith le feiceáil ag an am céanna)
| Brú (MPA) | Teocht (℃) | Luas (m/s) | Meánach | |||
| ≤35 | RC2055 | RC20555-B/C | RC2055 | RC20555-B | RC20555-C | Beagnach gach meán leachtach agus gáis |
| -200 ~+250 | -35 ~+250 | <2m/s | <6m/s | <2m/s | ||
Roghnú ábhair
1. Is féidir na hábhair O-fháinne meaitseála a roghnú: RO1 RUBBER Nitrile (NBR), Ro2 Fluororubber (FKM), etc.
2. Ábhair fáinne a shéalú: PTFE1, PTFE2, PTFE3, PTFE4, UPE, PK1, PK2, etc.
3. Earrach cruach dhosmálta: Earrach V-chruthach.
Sampla a Ordú
RC2055- 40-ptfe4+V Trastomhas seafta 40, is é PTFE4 ábhar fáinne ina saothraítear rónta, is é an t-earrach cruach dhosmálta earrach V-chruthach V
Tá trastomhas seafta RC2055-B-40-PTFE4+R02 40, is é PTFE4 ábhar fáinne ina saothraítear rónta, is é flororubber é meaitseáil O-fáinne
RC2055-C-40-PTFE4+R02 Is é trastomhas seafta 40, is é PTFE4 ábhar fáinne ina shéalú, is é flororubber é meaitseáil O-fáinne
Tábla Paraiméadair Sonraíochta (Tá na sonraíochtaí go léir laistigh den raon paraiméadair ar fáil)
| Raon trastomhas slaite D F8 | Trastomhas groove Dh9 | Trastomhas groove D1H10 | Doimhneacht imeall L1 | Leithead groove L | Allmhairiú Chamfer K. | Imréiteach gathaigh S Max | Fad Chamfer | R maithe | |
| 10MPA | 20MPA | ||||||||
| 5 ~ 19.9 | D+5 | D+9 | 0.85 -0.1 | 3.6 | 0.3 | 0.15 | 0.1 | Zmin = 0.8l | 0.8 |
| 20 ~ 39.9 | D+7 | D+12.5 | 1.35 -0.15 | 4.8 | 0.4 | 0.20 | 0.15 | 1.1 | |
| 40 ~ 400.9 | D+10.5 | d+17.5 | 1.8 -0.2 | 7.1 | 0.5 | 0.25 | 0.20 | 1.4 | |
| 401 ~ 1500 | D+14 | D+22 | 2.8 -0.2 | 9.5 | 0.5 | 0.30 | 0.25 | 1.6 | |
Tabhair faoi deara: Moltar go mbeadh cruas dromchla na seafta rothlach HRC ≥ 58.
RC2056
Coinníollacha oibre is infheidhme (níor cheart luachanna teorann a bheith le feiceáil ag an am céanna)
| Brú (MPA) | Teocht (℃) | Luas (m/s) | Meánach | ||
| ≤2 | RC2056 | RC2056-B | RC2056 | RC2056-B | Beagnach gach meán leachtach agus gáis |
| -200 ~+250 | -35 ~+250 | <14m/s | <6m/s | ||
Roghnú ábhair
1. Is féidir na hábhair O-fháinne meaitseála a roghnú: RO1 RUBBER Nitrile (NBR), Ro2 Fluororubber (FKM), etc.
2. Ábhair fáinne a shéalú: PTFE1, PTFE2, PTFE3, PTFE4, UPE, PK1, PK2, etc. 3. Earrach cruach dhosmálta: Earrach V-chruthach.
Sampla a Ordú
RC2056-40*62*8-PTFE4+V D*D*L, Is é an t-ábhar fáinne ina saothraítear PTFE4, agus is earrach V-chruthach é an t-earrach cruach dhosmálta RC2056-B-40*62*8-PTFE4+R02 D*D*L, Is é an t-ábhar fáinne ina saothraítear PTFE4, agus is é flororubber an O-fháinne meaitseála



















Seoladh
Uimh.1 Bóthar Ruichen, Páirc Tionscail Dongliuting, Chengyang Dúiche, Cathair Qingdao, Cúige Shandong, an tSín
Teil
R-phost